Italiano
165.000 €

RECENTE TRILOCALE ARREDATO TERMAOUTONOMO CON VISTA

Appartamento in vendita • Ternate
In palazzina recente con incredibile vista sul lago, trilocale mansardato ARREDATO termoautonomo.
Arredo moderno e di qualità.
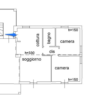
Ingresso con porta blindata, soggiorno con cucina a vista, bagno con doccia, camera matrimoniale e seconda camera.
Box di 20 mq con eventuale area lavanderia.
Contesto ben abitato.
Perfetto per una coppia giovane e non che ama la vista sul lago e l'idea di una soluzione già arredata.
Prezzo 165000 euro
Caratteristiche principali
Codice
V000296
Città
Ternate
Categoria
Appartamento
Prezzo
165.000 €
Spese condominiali
600 € / anno
Locali
3
Camere
2
Mq
76
Classe energetica
F
120
Stato Immobile
Ottimo
Grado
Signorile
Posizione
Lago
Panorama
Vista Lago
Arredi
Arredato
Tipo Cucina
A Vista
Riscaldamento
Autonomo
Tipo Riscaldam.
Caldaia
Tipo Impianto
Radiatori
Infissi
Legno Doppio Vetro

Accessori: Armadio a Muro, Cancello Elettrico, Doppi Vetri, Lavanderia, Porta Blindata

Mappa
Richiedi informazioni
Invia
Condividi su
Cookie preference